8-800-707-18-66
Заказать обратный звонок
пн - пт, с 10.00 до 19.00 ч.
сб - с 10.00 до 17.00 ч.
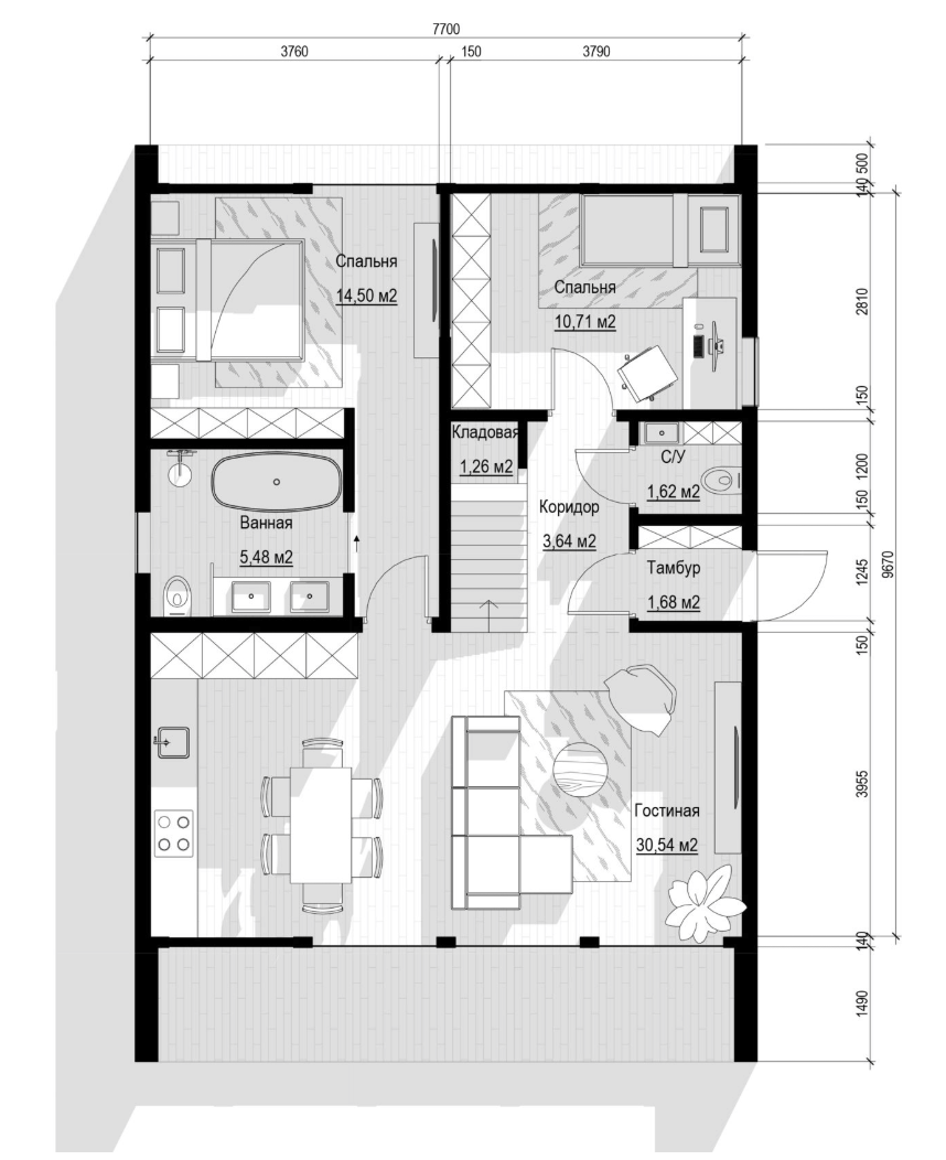
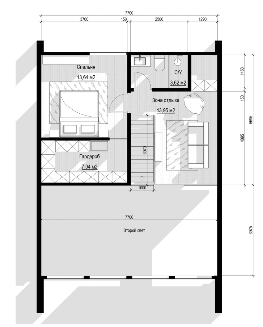
135 м2
Материал стен5
3
11 109 000 р.
Цена с монтажом11 730 000 р.


Это совсем просто! В нашей компании работает штат опытных архитекторов, которые на основании ваших идей создадутиндивидуальные планировки, внесут корректировки в фасад. Архитектор может встретиться с вами, как в одном из наших офисов, так и в любом другом удобном для вас месте, в том числе на участке.
Немецкая технология фахверк появилась еще в XIV веке. В основе такого дома прочный каркас из клееных деревянных конструкций, который не прячется под обшивкой, а намеренно остается видимым. Когда-то ограждающие конструкции заполняли смесями на основе глины или кирпичом. Сегодня в тренде освобождение стен от глухого заполнения в пользу эффектного панорамного остекления.
Уникальность фахверковых домов в том, что несущий каркас из клееной древесины можно «нарастить» в длину кратно 2,6 м, тем самым увеличить полезную площадь дома. Фахверковый дом можно менять и внешне, например, варьируя площадь остекления. Подобная легкость и творческая свобода в создании собственного дома – уникальная особенность проектов этой серии.
Фахверковые дома, несмотря на свою «прозрачность» имеют рекордно низкую теплопроводность. Современные утеплители и специальные стеклопакеты делают дом действительно энергоэффективным. Несмотря на сравнительно небольшую толщину стен, фахверковые дома в разы теплее кирпичных. Кроме того, за счет уменьшения толщины стен полезная площадь дома увеличивается примерно на 10%.
Технологичный клееный конструкционный брус и PIR утеплители являются максимально влагостойкими материалами. Под действием внешней среды они не будут деформироваться, а значит дом с течением времени сохранит точную геометрию формы. Продувания, промерзания и прочие негативные явления исключены.
При изготовлении клееных деревянных конструкций мы используем клеевые системы всемирно известного прозводителя AkzoNobel (Швеция). Клеевые составы абсолютно безопасны для здоровья, что подтверждают испытания независимых центров и соответствующие сертификаты. Утеплители PIR также не выделяют вредных веществ — сегодня это самый экологичный и безопасный теплоизоляционный материал.
Несущие клееные деревянные конструкции гораздо безопаснее бетонных или металлических. Распространение огня сдерживается в течение 30 и более минут. PIR утеплители в панелях под действием огня лишь обугливаются — не плавятся, образуя горящие капли расплава, и не поддерживают распространение пламени.
Монтаж домокомплекта относительно прост и не требует больших временных затрат, все работы занимают порядка 10-14 дней. Вы можете заказать сборку дома в нашей компании или осуществить монтаж своими силами. Приобретая домокомплект, вы получите необходимый комплект чертежей и инструкций.
Благодаря стандартизации деталей и массовости производства мы предлагаем действительно качественные современные дома по меньшей стоимости.
Никогда не поздно найти более интересные условия и избежать уловок строителей!
Мы сделаем бесплатный аудит сметы и укажем на возможные «подводные камни»